Строительство домов в Смоленской
и Брянской области
г. Смоленск,
ул. Тенишевой, д.8.
Звоните Пн-Пт с 09:00 до 18:00
8 (967) 913-73-86

Производство
и продажа домов
из двойного бруса


Натуральное дерево

Высокая теплосберегаемость

Выгодная стоимость
Технология «Двойной брус»
Двойной брус - это новая финская технология в малоэтажном строительстве домов. Представляет
собой систему из просушенного, калиброванного, профилированного пиломатериала, состоящую из
внешнего и внутреннего элемента стены дома, и свободного пространства между ними, заполняемого утеплителем. Превосходно сохраняют тепло, поддерживают внутренний микроклимат.
Преимущества «Двойного бруса»
Нет усадки после монтажа.
Применение сухого калиброванного пиломатериала исключает усадку и растрескивание стен.
Монтаж круглый год.
Отсутствие "мокрых" процессов позволяет вести строительство как в летний, так и в зимний период.
Легкая конструкция.
Возможность экономии на фундаменте, использование винтового фундамента вместо ленточного.
Высокие теплосберегающие показатели.
Тройная защита от ветра (брус, утеплитель, брус) и плотное прилегание друг к другу досок обеспечивает высокую теплоизоляцию.
Экономия на отделке.
Сухая профилированная доска имеет очень высокую геометрическую точность и может служить готовым чистовым вариантом внутренней отделки.
Экологичность.
Все используемые материалы при строительстве дома по технологии «двойной брус» экологически чистые.
Паропроницаемость стен.
Паропроницаемость стен и аромат сухого дерева создают благоприятный микроклимат в помещении.
Экономное строительство.
Стоимость м2 жилья по технологии двойной брус в два раза теплее и дешевле популярного клеенного бруса.
Стоимость
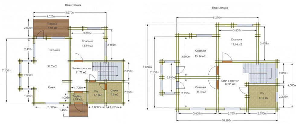
“УЮТНЫЙ”

Общая площадь дома: 114 м2
Площадь террас и балконов: 9.8 м2
Площадь внутренних помещений: 114 м2
Высота 1 этажа: 2.6 м
Высота 2 этажа: 2.5 м

Стоимость:   Базовый: 1 710 000 руб.
                         
Полный: 2 850 000 руб.
“СЕМЕЙНЫЙ”

Общая площадь дома: 142 м2
Площадь террас и балконов: 14 м2
Площадь внутренних помещений: 128 м2
Высота 1 этажа: 2.78 м
Высота 2 этажа: 2.7 м

Стоимость:   Базовый: 2 130 000 руб.
                         
Полный: 3 550 000 руб.
“ЭЛИТНЫЙ”

Общая площадь дома: 185 м2
Площадь террас и балконов: 45 м2
Площадь внутренних помещений: 140 м2
Высота 1 этажа: 2.6 м
Высота 2 этажа: 2.5 м

Стоимость:   Базовый: 2 775 000 руб.
                         
Полный: 4 625 000 руб.
Базовый (15 000 руб./м2) - фундамент(винтовые сваи), стены дома с утеплителем, кровля с утеплителем.
Полный (25 000 руб./м2) - фундамент, стены с утеплителем, кровля с утеплителем, пол утеплен и застелен,
разводка электричества, водоподготовка (разведение пластиковых труб в сан узлы и кухню), разведение
пластиковых труб с радиаторами, водоотведение, окна пластиковые, входная железная дверь.

Примеры наших работ:
Мы строим только качественные дома
Производство.
Собственное производство качественного, ровного пиломатериала.
Сервис.
Производим уборку строительного мусора на участке и в доме.
Дополнительные услуги.
Предлагаем системы автономного электро снабжения. Интегрируем системы рекуперации воздуха для комфортного микроклимата в Вашем доме.
Проверка.
Проводим биолокационную “проверку” участка на наличие геопатогенных зон и для оптимального расположения дома на участке.
Фундамент.
Мы делаем любые типы фундаментов: от винтовых свай до монолитных, утепленных финских плит.
Рабочие.
В штате 4 постоянные бригады.
Только русские работники.
Экономия.
Работаем только с производителями и оптовыми поставщиками расходных, декоративных, кровельных материалов, что уменьшает конечную стоимость объекта.
Опыт.
8 лет на рынке Смоленска и Брянска. Более 35 объектов в Смоленской и Брянской областях.
Как мы работаем
Вы оставляете заявку на сайте или звоните нам

Подбираем вместе с Вами оптимальный для Вас вариант

Изготавливаем домокомплект, параллельно устанавливаем фундамент, проведение монтажных работ

Вы получаете свой новый и уютный дом!
Контакты

Адрес:
г. Смоленск, ул. Тенишевой, д.8

Время работы:
Пн-Пт с 09:00 до 18:00

Телефоны:
8 (967) 944-24-16
8 (967) 913-73-86
Copyright © domtimber.ru 2022г.
Разработка сайта Grafika.by
Закажите БЕСПЛАТНУЮ
консультацию специалиста по планировке Вашего дома
СПАСИБО!
Ваша заявка отправлена
Мы свяжемся с Вами в билжайшее время